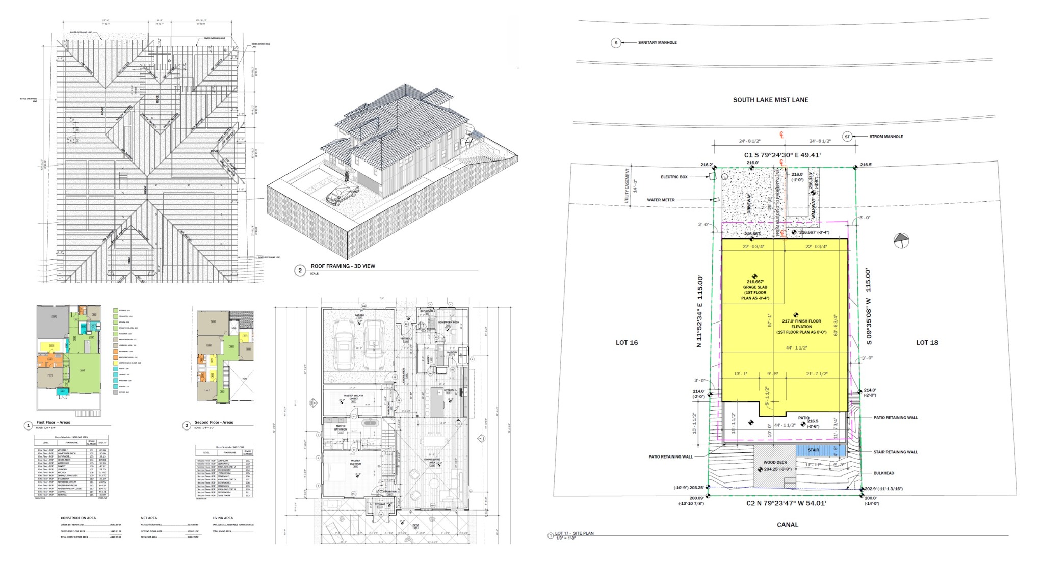
Single Family House
Cornerstone Building Innovations (General Contractor) hired me as an Independent Architectural Consultant to develop the architectural design for a two-story single-family residence on a 5,945.45-sq-ft lot in Willis, Texas (Lake Conroe), with a net building area of 4,489.5 sq ft. The first floor includes a vestibule, guest bathroom, homework nook (two workstations), kitchen with pantry and laundry, double-height living/dining area, common coat closet, primary suite, and garage; the second floor includes three bedrooms (each with a private bath and walk-in closet), a game room, and an additional living area, with exterior spaces consisting of a patio at first-floor level and a wood deck at lake level.
My Role
Role / Title
Independent Architectural Consultant
Key responsibilities
- Developed the architectural design for a two-story single-family residence, translating client requirements and site conditions into a cohesive residential program.
- Defined floor layouts, vertical relationships, and interior spatial organization, including double-height living spaces and primary suite planning.
- Designed exterior living areas, including a first-floor patio and a wood deck at lake level, integrated with the site and views toward Lake Conroe.
- Coordinated with the General Contractor to align the architectural design with constructability, budget, and site constraints.
Tools / Platforms
Revit • AutoCAD • Enscape • Adobe Creative Suite
Deliverables
- Schematic Design (SD) drawing sets
- Design Development (DD) drawing sets
- Revit-based BIM models
- Dimensioned floor plans, elevations, and sections
- Architectural details and schedules (doors, partitions, windows, finishes)
- Area calculations
- Construction Documents (CDs)



