Iacobozzi Distributor – Corporate Offices
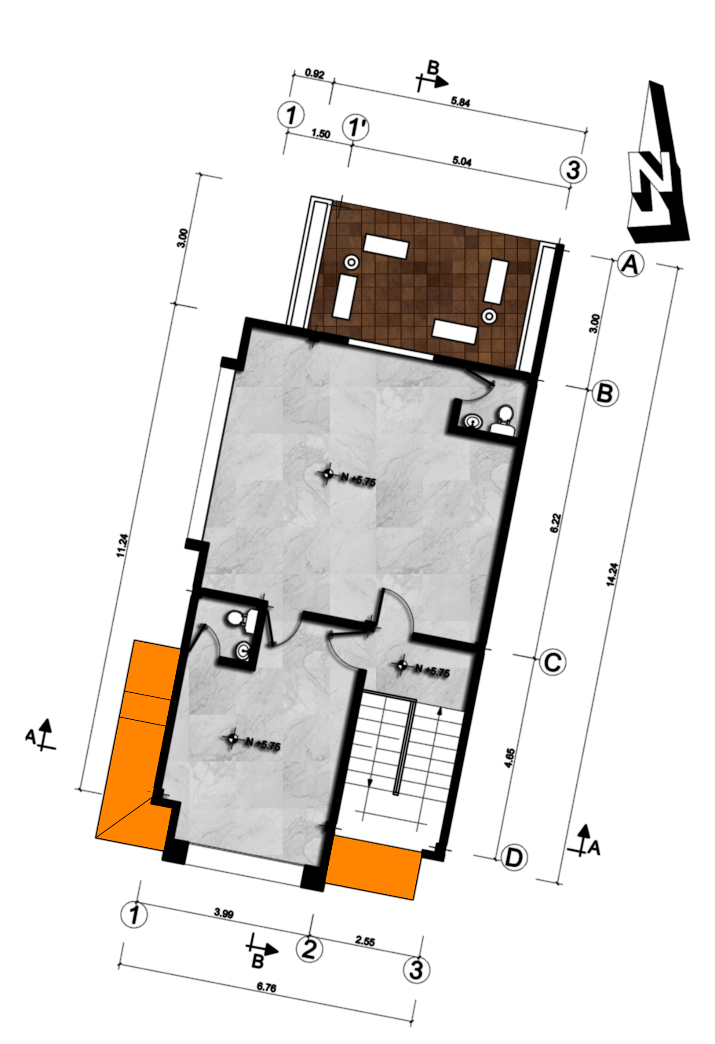
Iacobozzi Distributor is a company dedicated to the wholesale and retail sale of cleaning supplies, based in Barquisimeto, Lara State, Venezuela. The company operates from a warehouse on the east side of the city. At this location, C.M. Arquitectura y Urbanismo designed a second office building for the company. As part of the firm, I participated as Project Architect, developing the architectural design for Phase 2 of the Iacobozzi Headquarters—a new, street-facing office building located within the existing parking lot and intended for rental use.
The building connects directly to the street and pedestrian flow and was conceived as the public image of the company. Because the surrounding context is composed of neutral, utilitarian buildings with limited urban character, the design aims to create a strong presence along the sidewalk. The proposal integrates portions of the perimeter fence into the building massing to define the main entrance, using contrasting elements and materials to draw attention from passersby.
Lot area: 3,108.83 sq ft (288.82 m²)
Total construction area: 2,846.84 sq ft (264.48 m²)
My Role
Role / Title
Project Architect
Key responsibilities
- Developed the architectural design for Phase 2 of the Iacobozzi Distributor Headquarters, a new street-facing office building located within the existing warehouse site and parking area.
- Defined the building’s massing, façade composition, and site integration to establish a strong corporate image and enhance visibility along the public sidewalk within a predominantly utilitarian urban context.
- Designed the architectural layout and circulation to connect the new office building with the surrounding site, integrating the perimeter fence and entry elements to clearly define the main access.
- Coordinated the architectural design development under the guidance of the Senior Project Architect, ensuring alignment with client goals, site constraints, and constructability.
Tools / Platforms
AutoCAD • Sketching • Adobe Creative Suite (presentations)
Deliverables
- Design Development (DD) drawings
- Architectural floor plans, elevations, and sections
- Façade and massing studies
- Architectural details and schedules
- Area calculations








